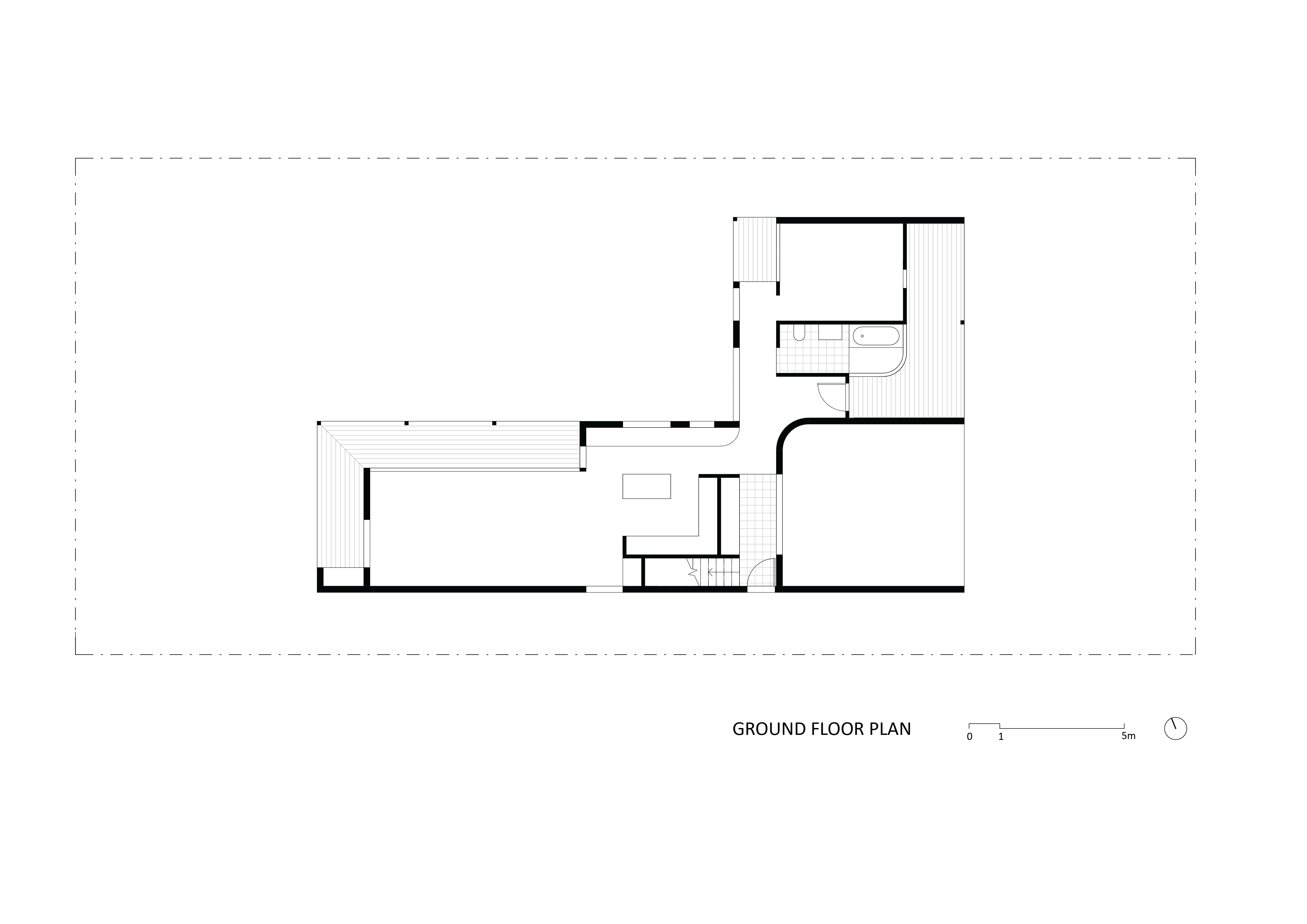
The original brief called for a three-to-four-bedroom family home. We expanded this to consider how the house might be used over decades: two households today, a family of five tomorrow, and eventually parents living independently downstairs while an adult child and partner occupy the upper level. The result is a compact two-storey home with a single-storey street presence that sits comfortably within a suburban context.
Our design includes two separate entrances with shared garage, laundry and service spaces. The ground floor provides living areas, an accessible bedroom and bathroom. Upstairs contains two bedrooms, a bathroom and the option for a third. Importantly, the main bedroom is sized and planned so it can later become a kitchen, living and dining space, supported by a generous balcony to ensure amenity for a second dwelling.
Affordability is achieved through simplicity. The house is formed from a clear, efficient structure with two single-pitched roofs and standardised construction elements — cladding, linings, windows and doors — reducing build cost and complexity. Designed for outer-suburban sites dominated by single-storey homes, the model can be replicated, mirrored or rotated, making it suitable for small developments and new subdivisions while still allowing visual variety.
Environmental performance is embedded in the design rather than added on. A compact form reduces material use and embodied energy. Passive solar principles minimise ongoing energy costs. Most importantly, flexible layouts extend the life of the building, allow future subdivision, and increase occupancy — all of which improve affordability while reducing waste.
Three-Fold demonstrates that sustainable design is about flexibility, opportunities and joy. By designing for change, the house supports different stages of life, different household structures, and different financial realities. Sustainability here becomes practical and tangible: building less, wasting less, and creating homes that continue to deliver value — for owners, occupants, and the environment — over the long term.





